VILLA VERDE
PHOTOS
MEDIATER vous propose la Villa Verde, une jolie copropriété composée de 8 logements à l’entrée de Ranspach-le-Bas, un secteur privilégié au cœur du croisement des 3 frontières. Située dans un joli écrin de verdure au bord d’un petit ruisseau, cette résidence vous séduira grâce à ses nombreux atouts.
Un cadre idyllique dans un secteur dynamique
En pleine campagne, vous profiterez du calme et de la sérénité du lieu tout en jouissant des atouts économiques du secteur des 3 frontières. Dans l’agglomération de Saint-Louis, à 15 minutes en voiture de l’Allemagne et de la Suisse, Ranspach-le bas est idéalement desservi grâce à ces divers canaux de transports. L’aéroport binational franco-suisse, l’EuroAirport se situe à 10 minutes en voiture ; il dessert la plupart des destinations européennes mais aussi des destinations internationales. La présence d’un réseau ferré particulièrement dense grâce à la gare SNCF de Saint Louis, d’un réseau routier par l’intermédiaire de l’A35 et même d’un réseau fluvial grâce au Rhin permettent un flux conséquent offrant des possibilités de développement importantes.
La villa verde : Une résidence premium
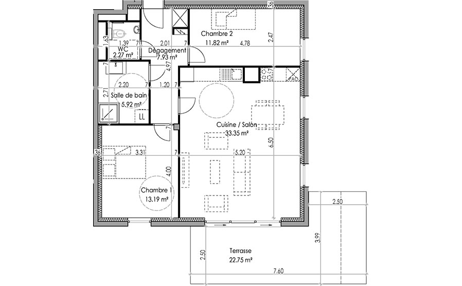
Pour l’ensemble de ses programmes immobiliers, Mediater privilégie des matériaux et technologies de qualité pour le confort de ses occupants. Avec son architecture contemporaine, la villa Verde propose des appartements du T3 au T4 avec diverses prestations :
- Chaque logement dispose d’une grande terrasse ou d’un jardin privatif
- Une double voire triple exposition
- Spacieux extérieurs des appartements en attiques
- Les rez-de-jardin sont orientés plein sud
- Des espaces très lumineux grâce à de grandes baies vitrées coulissantes
- Des pergolas pour profiter des extérieurs en toute saison
- Un ascenseur haut de gamme
- Chauffage au sol réversible par pompe à chaleur
- Des garages avec des portes motorisées
Ce programme immobilier est construit par Mediater, un groupe actif depuis plus de 20 ans dans la région du Grand Est.
Voir les autres programmes MEDIATER :
Pour en savoir plus sur ce nouveau programme
Contact
Un groupe régional actif depuis plus de 20 ans au service de l’habitat durable, de l’environnement et du patrimoine de qualité.
MEDIATER
7 rue de La Haye
67300 SCHILTIGHEIM
Téléphone: 03 88 31 76 00
55 rue Marc Seguin
68200 MULHOUSE
Téléphone: 03 89 52 60 61

